Opportunity to lease a Prime Office Space in South Surrey’s Premier Business Hub.
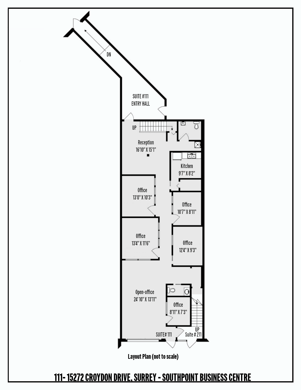
Position your business for success in this exceptional ground-floor office unit at the highly sought-after Southpoint Business Centre. Offering unparalleled convenience and a professional image, this space is perfectly located with immediate access to Highway 99 and King George Boulevard.
This unit is ideal for any professional practice looking to establish a high-profile presence in the thriving South Surrey community. This won’t last, call for details.
For private tours or additional information, please contact the listing agent directly. Please do not approach the current business owner or staff members.
Contact Urban Team for additional information.
Added: November 12, 2025
$850,000
Added: May 7, 2023
Added: October 21, 2024